/ Αμοιβές Μηχανικών / ΕΦΚΑ (ΙΚΑ) / Πίνακας 1 – Μη στεγασμένα Επαγγέλματα

Πίνακας 1 – Μη στεγασμένα Επαγγέλματα

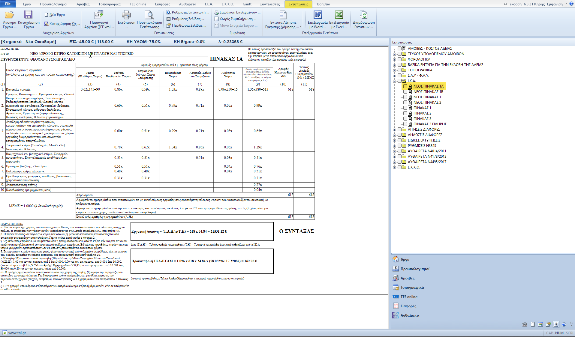
Ο Πίνακας 1, συμπληρώνεται αυτόματα σύμφωνα με τους χώρους που έχουμε δηλώσει στο συμβατικό προϋπολογισμό ενός έργου

ΕΧΕΤΕ ΕΡΩΤΗΣΕΙΣ ;

Επικοινωνήστε μαζί μας

Ο Πίνακας 1, συμπληρώνεται αυτόματα σύμφωνα με τους χώρους που έχουμε δηλώσει στο συμβατικό προϋπολογισμό ενός έργου. Ο μηχανικός μπορεί να δεχθεί τον πίνακα ως έχει, να τον αλλάξει συμπληρώνοντας ή διαγράφοντας τιμές (επιφάνειες) η ακόμα και να συμπληρώσει τον πίνακα χωρίς να έχει δώσει συμβατικό προϋπολογισμό. Εμφανίζεται το σύνολο των ημερομισθίων κάθε γραμμής και αναγράφονται το σύνολο των ημερομισθίων του πίνακα, η Εργατική Δαπάνη (ΕΔ), οι Εισφορές ΙΚΑ και ΕΛΔΕΟ και τελικά το ποσό της προκαταβολής για την έκδοση της οικοδομικής άδειας.

Συλλογή Εικόνων

Σχετιζόμενα Προϊόντα

Συντελεστές

Συντελεστές & Παράμετροι

Το ΤΟΛ Αμοιβές, είναι μια εφαρμογή που υπολογιστικά, βασίζεται σε ένα πλήθος νόμων, υπουργικών αποφάσεων, προεδρικών διαταγμάτων και διαφόρων εγκυκλίων.

Περισσότερα →
Προϋπολογισμοί Κτηριακών Έργων

Συμβατικός Προϋπολογισμός

Ο συμβατικός προϋπολογισμός κτηρίων διαμορφώνεται σύμφωνα με την Υ.Α.81304/6083/6.12.89 και τις σχετικές εγκυκλίους, αλλά και με τις προσθήκες του ΤΕΕ.

Περισσότερα →
Καλάθι αγορών
Κύλιση στην κορυφή