Ανάπτυξη και Διάθεση Τεχνικού Λογισμικού
Επικοινωνήστε μαζί μας
Κτήρια οπλισμένου σκυροδέματος (Ο/Σ) (8)
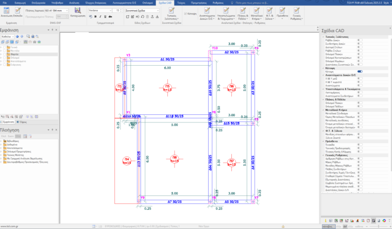
Τα σχέδια οπλισμών του ΡΑΦ (1)
ΔΙΑΣΚ – Διατομή σκυροδέματος (4)
Αποτίμηση υφισταμένων κτηρίων Ο/Σ (4)
Ενισχύσεις υφισταμένων κτηρίων Ο/Σ (4)
Πεπερασμένα στοιχεία πλακών (3)